Частный коттедж
Общая площадь:
- 130 кв.м.
Стадия проектирования:
- стадия Р
Программа проектирования:
Инженерные системы:
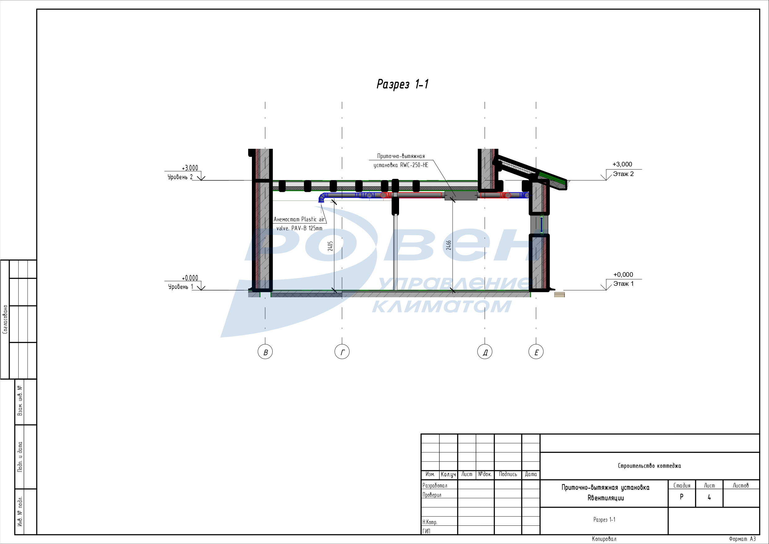
- общеобменная вентиляция
Наш штат квалифицированных специалистов осуществляет выдачу проектов стадии П и Р как в AutoCAD, так и в среде BIM-моделирования (Revit), а также предоставляет консультационные услуги в области проектирования инженерных систем
Применимые инженерные решения в проекте
Другие объекты этой отрасли

